LES AUTORISATIONS D’URBANISME
Simplifier vos démarches pour construire et rénover sereinement !
Déclaration préalable de travaux?
Permis de construire?
Changements de destination?
Extension?
Avant qu’un espace prenne forme, il y a une étape essentielle :
Comprendre, traduire et sécuriser votre projet avec les obligations réglementaires.
MA MISSION
MLKO DESIGN prend en charge l'intégralité de ces démarches :
De la préparation à la mise en dépôt de votre dossier
En veillant à ce que votre projet reste fidèle à son intention esthétique et fonctionnelle tout en respectant parfaitement le Plan Local d’Urbanisme (PLU) et l’ensemble des obligations réglementaires.
Mon expertise garantit que chaque ligne de votre projet respecte les réglementations locales (PLU) et qu'il est surtout
OPTIMISÉ POUR L’APPROBATION !
LES BASES À MAÎTRISER
Quand faut-il une DP ou un PC ? (Seuils de surface et nature des travaux)
Un architecte est-il obligatoire pour votre projet ?
Quel est le délai d'instruction à prévoir par l'administration ?…
Avant de nous confier votre dossier...
Nous mettons à votre disposition une page complète d'information pour maîtriser les fondamentaux :
EXEMPLES DE PLANS
Plan de masse d'une propriété avec bâtiment, terrasse, et différentes parcelles environnantes, incluant des limites de propriété, des références cadastrales, et annotations techniques.
Plan cadastral montrant une section de terrain avec un rectangle rouge indiquant la parcelle n ° 0133, surface de 1945 m², située près de la rivière La Sienne, dans une zone résidentielle avec des bâtiments et des routes environnantes.
Plan de masse d'un terrain avec bâtiments, arbres, limites de propriété, routes environnantes et annotations techniques.
Plan architectural d'une extension de maison, montrant la construction existante, un sous-sol avec un spa intégré, un pont, et des détails techniques et dimensions.
Plan de construction architectural montrant la coupe transversale d’un bâtiment en container, avec détails techniques, niveaux, matériaux et annotations en français.
Plan architectural d'une façade principale sud d'une maison avec détails de dimensions et matériaux, incluant une toiture en panneaux solaires, et un balcon sur la partie supérieure.
Plan détaillé d'une terrasse avec une piscine encastrée, une pergola, des étagères en bois, un muret végétal, et des zones de revêtement en bois et en carrelage, avec des mesures en millimètres.
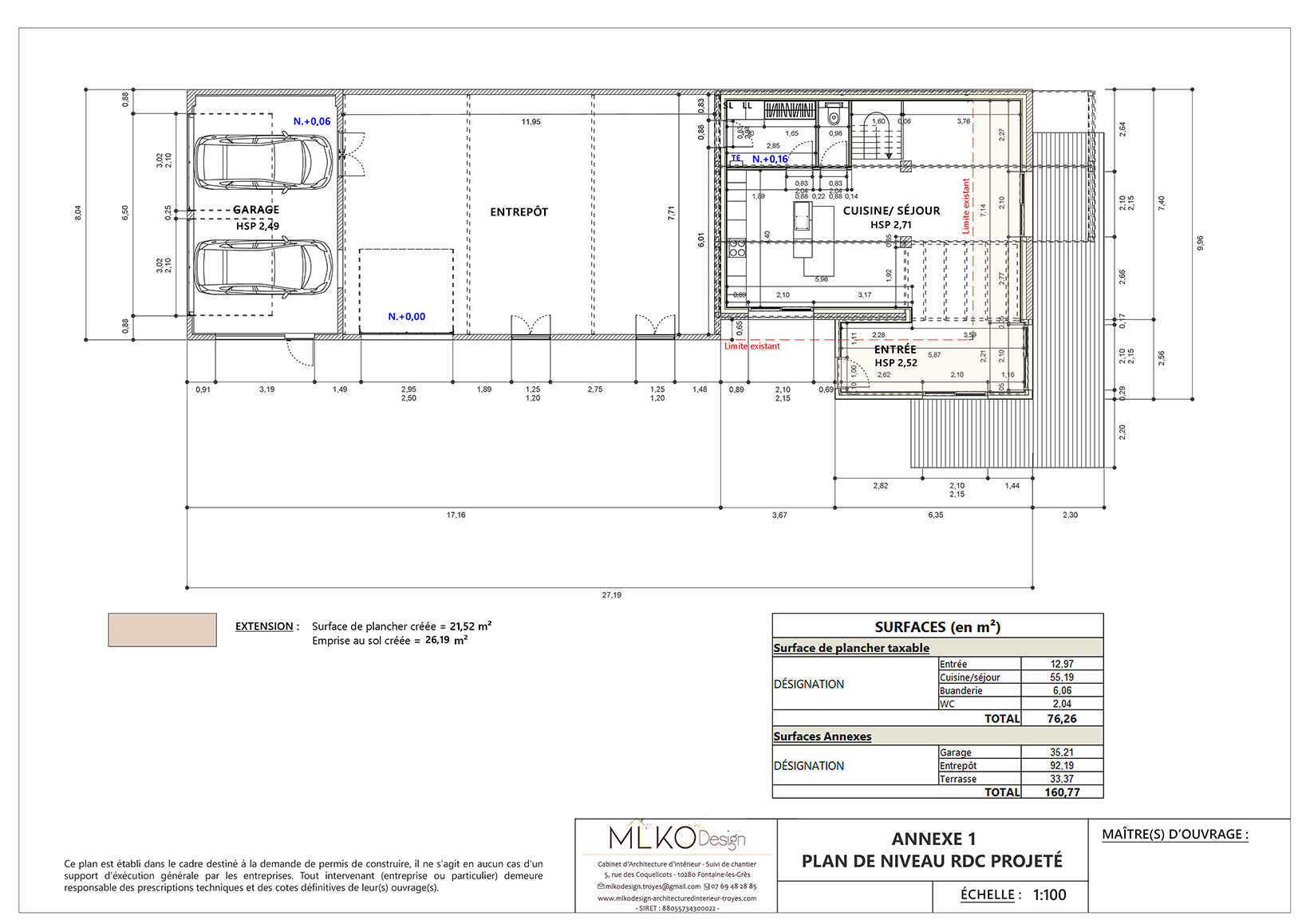
Plan architectural d'une maison avec garage, entrepôt, cuisine, séjour, entrée, buanderie, WC, terrasse, et un espace de stockage, avec plusieurs mesures et annotations techniques.
Plan architectural détaillé de deux sections de toiture, une pour le toit plat et l'autre pour une terrasse, illustrant les matériaux et couches de construction, avec des annotations en français et une échelle de 1:10.
Plan d'aménagement d'une salle de restaurant avec espace privé, bar, cuisine, WC, terrasse et terrasse couverte, comprenant des annotations pour l'évacuation incendie, alarmes, extincteurs, et autres éléments de sécurité.
Plan architecturale montrant la façade principale sud-ouest et la façade arrière nord-est d'une maison avec des dimensions et des détails de construction.
Plan de toiture, incluant une toiture en fibrociment, une toiture en bac acier avec joint debout RAL 7016, une toiture plate inaccessible, une toiture terrasse, et des modules photovoltaïques Sunpower 500W.

